ISLAND-HOUSE I

Projektet handlar om att bygga till och samtidigt skapa tillgänglighet. En viktig fråga i processen: vart placera tillbyggnaden? Vi startade projektet med en kund-survey. Mycket tid gick åt till volymstudier för att addera den nya volymen på ett optimalt sätt

När du gör ditt projekt är volymstdudier viktigt.https://www.o2a.se/nyhter/island-house-1
 
Sektioner genom tillbyggnaden

Sektioner genom tillbyggnaden

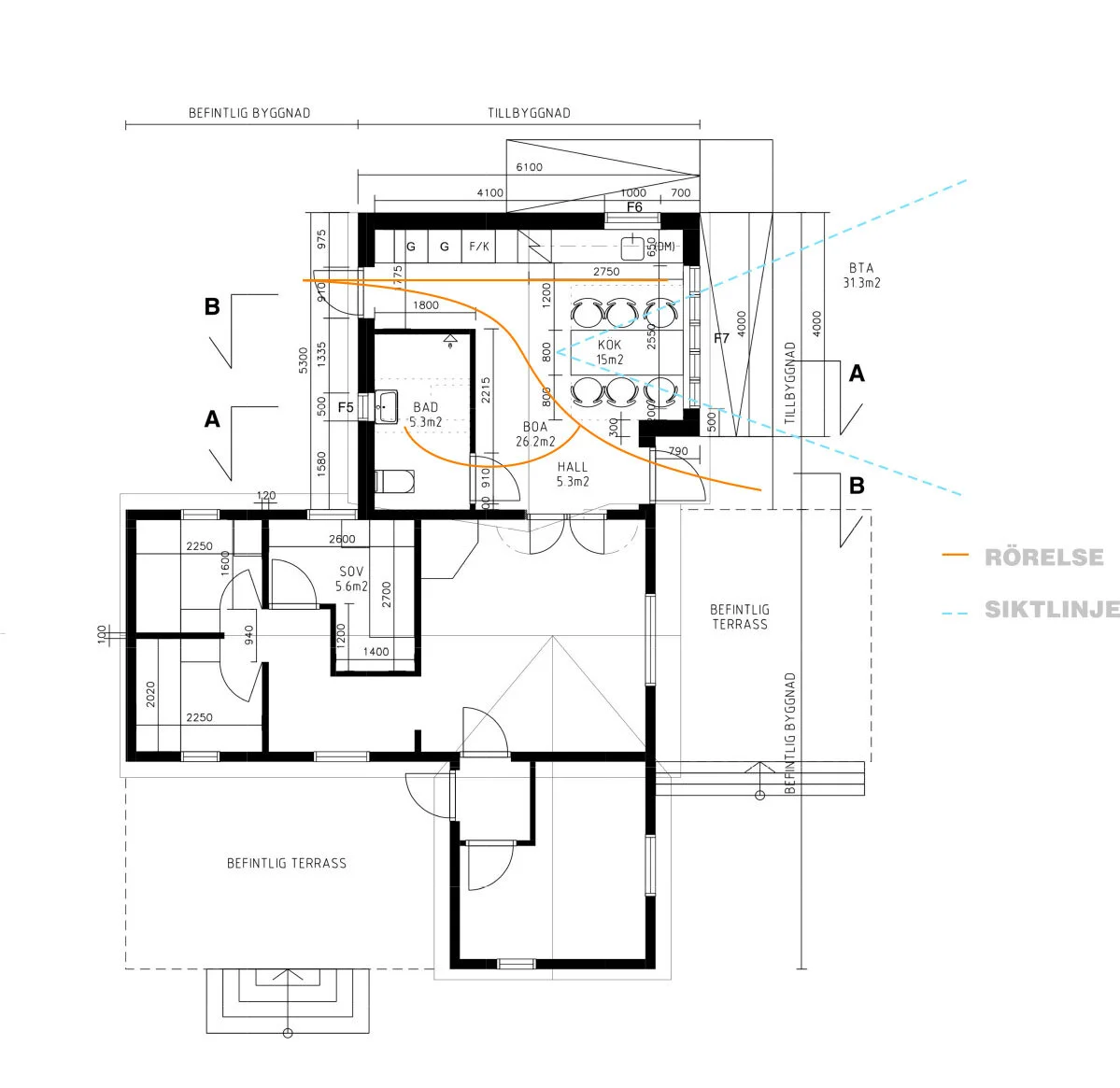
Diagram över rörelse och siktlinjer

Diagram över rörelse och siktlinjer

Rörelse & Siktlinjer

Tillbyggnaden placerades med utgångspunkt i en definierad utsikt / vy. Efter en analys av den befintliga byggnaden bestämde valde vi att ha två entréer. En “grov”entré som leder direkt in i köket och som passar bra när man kommer med matkassar som ska in i kyl och skåp, Den andra entrén är med avhängning och avställning av skor och stövlar. Utifrån placeringen och uppbyggnaden av den befintliga byggnaden placerade vi köket mot ytterväggen i tillbyggnaden, som en fondvägg som är i blickfång när man går från befintlig in i den nya delen.